Home
Work
Process
DESIGN FEES
About
Contact
Home
Work
Process
DESIGN FEES
About
Contact
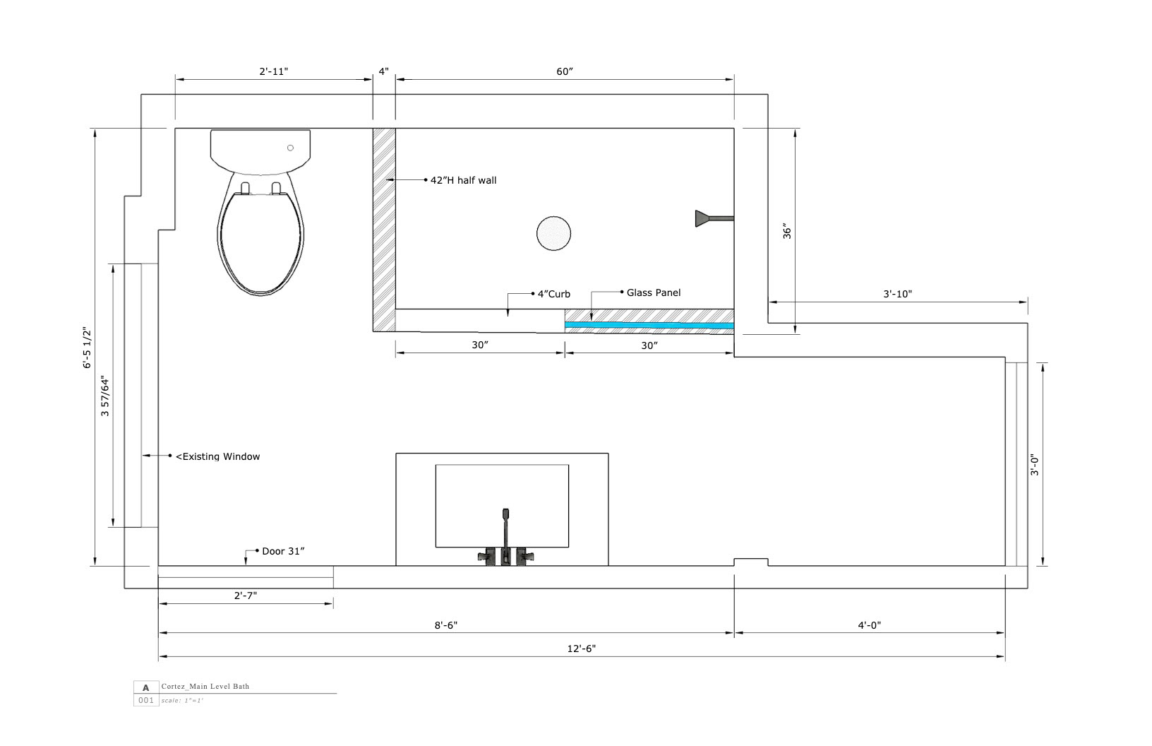
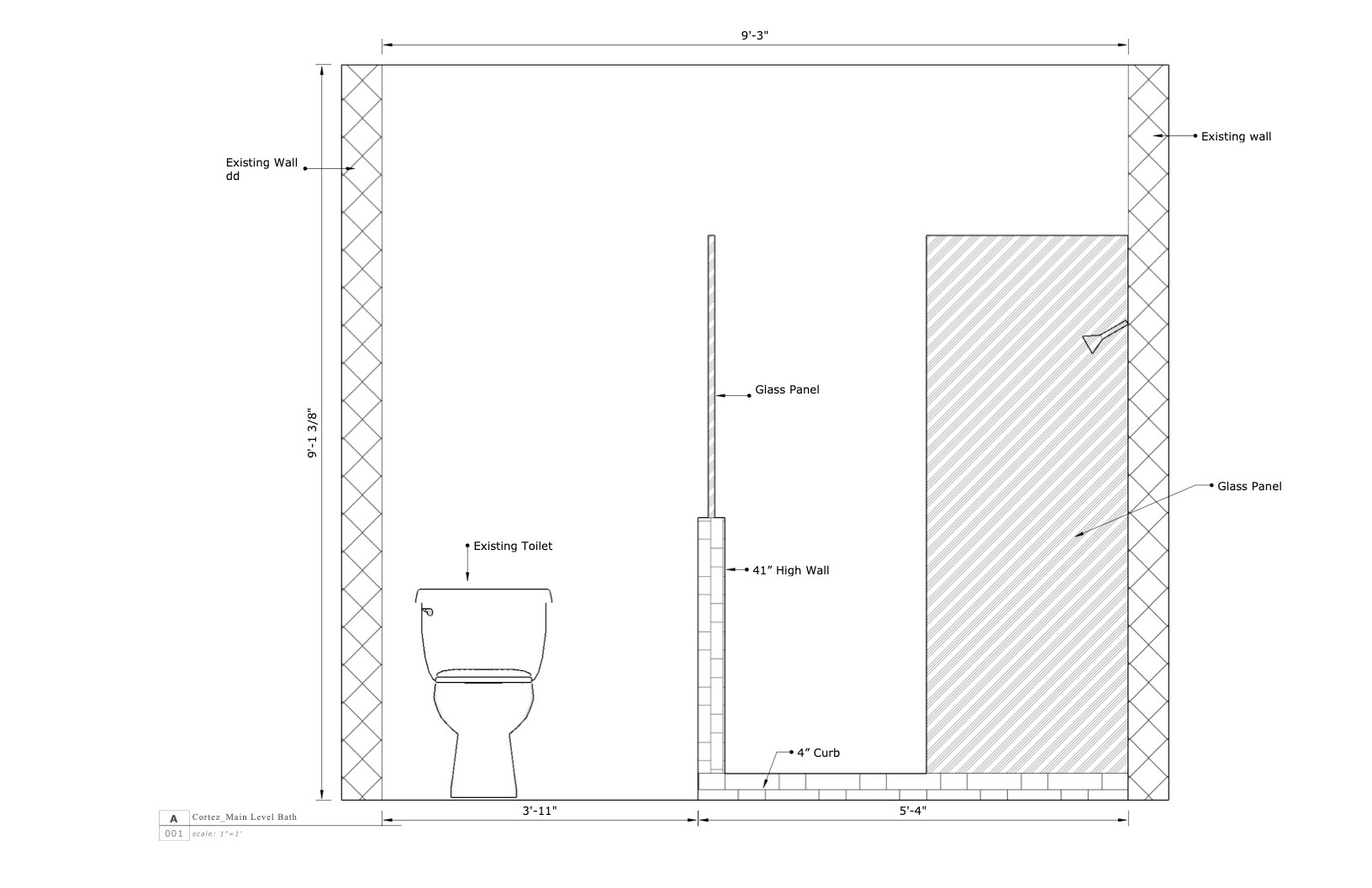
Guest Bathroom Remodel
↑
Back to Top